Adif Alta Velocidad ha adjudicado al consorcio formado por las empresas Maco Infraestructuras y Medio Ambiente, Vials i Medi Ambient e Indutec Instalaciones un contrato de obras para aumentar la funcionalidad y mejorar la explotación de la estación de Barcelona-Sants, por un importe de 438.757 euros y con un plazo de ejecución de dos meses.
(01/02/2021)
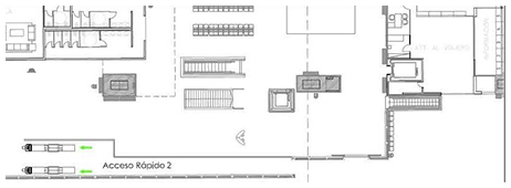
El contrato comprende la construcción de dos nuevos accesos a la sala de embarque, ampliando así el actual número de escáneres de control, pasando a contar con un total de diez.
El contrato abarca también la sustitución del cerramiento perimetral de los núcleos de escaleras de acceso a los andenes con el objetivo de mejorar los recorridos en su interior, desmontando la actual estructura y colocando nuevas barandillas de vidrio. Además, se adecuarán las instalaciones de información al viajero conforme a las nuevas necesidades.

Aumento de la demanda en Barcelona-Sants
Este proyecto, que constituye la primera fase de una actuación más global, es fruto del análisis que Adif Alta Velocidad ha realizado sobre las necesidades de la sala de embarque ante la previsión de crecimiento de la propia estación y el progresivo incremento de viajeros derivado de la liberalización del transporte por ferrocarril y la consiguiente entrada de nuevos operadores.
A este escenario se añade la recuperación de los estándares anteriores a la situación derivada de la alarma sanitaria, la puesta en servicio de la variante Vandellós-Tarragona del Corredor Mediterráneo y las obras actualmente en ejecución para la nueva configuración del esquema de vías de estacionamiento de servicios de ancho convencional.
La planificación ante el aumento de la demanda en Barcelona-Sants está condicionada a dos proyectos cuya redacción se encuentra en proceso, con un calendario de actuaciones que abarca más allá de 2023. Por ello, se ha determinado la necesidad de adjudicar este contrato para ejecutar estas primeras medidas de corto plazo y que no requieren obras que comporten importantes afectaciones a la estructura actual de la estación.
Dos nuevos accesos a la sala de embarque
Tras estudiar varias alternativas, se ha optado por abrir dos nuevos accesos a la sala de embarque para incrementar el número de escáneres, uno de ellos en el pasillo lateral lado montaña (frente a la comisaría de los Mossos d’Esquadra), y otro en el lado mar (junto a la oficina de información al cliente). En ambos accesos se instalarán dos escáneres de acceso rápido, manteniendo las distancias de evacuación y los anchos mínimos de los pasillos.
En la actualidad, el acceso principal de la estación cuenta con seis escáneres con lo que, una vez finalicen las actuaciones previstas en este contrato, dispondrá de diez escáneres, con lo que casi se duplica la capacidad de embarque actual.
