Renfe ha adjudicado las obras de mejora de la accesibilidad en la estación de Mollet Sant Fost, en la línea Tarragona-Barcelona-Portbou, por más de 4 millones de euros. El consorcio adjudicatario, Benjumea y Mij Grúas, tendrá un plazo de ejecución de dieciséis meses.
![]() |
||
(29/11/2021)
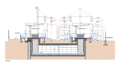
Esta obra complementa otras actuaciones enmarcadas en el Plan de Cercanías de Cataluña 2020-2030 e incluye la renovación y modernización del edificio de viajeros, como la construcción de un paso inferior con ascensores en ambos andenes; el recrecido de andenes y prolongación hasta doscientos; la sustitución de la iluminación de los andenes; la urbanización de accesos y la instalación de nuevas marquesinas que cubran el acceso a los ascensores y escaleras.
Paralelamente, se han finalizado las actuaciones de adecuación, prolongación y repavimentado del andén principal, que han contado con un presupuesto de medio millón de euros. Todas estas actuaciones permitirán adecuar las instalaciones a las necesidades de los más de 10.000 viajeros que utilizaban la estación a diario, según datos previos a la pandemia.

