Adif iniciará la noche del próximo lunes, 1 de junio, la primera fase de las obras de infraestructura necesarias para adaptar el esquema de vías de estacionamiento de ancho convencional de la estación de Barcelona Sants, lo que permitirá disponer de cuatro vías para la parada de los trenes que acceden a la terminal por cada uno de los dos túneles de acceso a la capital catalana.
![]() |
||
(26/05/2020)
Este proyecto, conocido como 4+4 y que supone una inversión superior a 8,9 millones de euros, permitirá implantar un nuevo esquema de vías en la estación de Sants, lo que resulta de gran importancia para la mejora del servicio, ya que permitirá optimizar y flexibilizar la capacidad de la infraestructura y de la explotación en el núcleo central de la red de Barcelona.
Funcionalidad de los trabajos
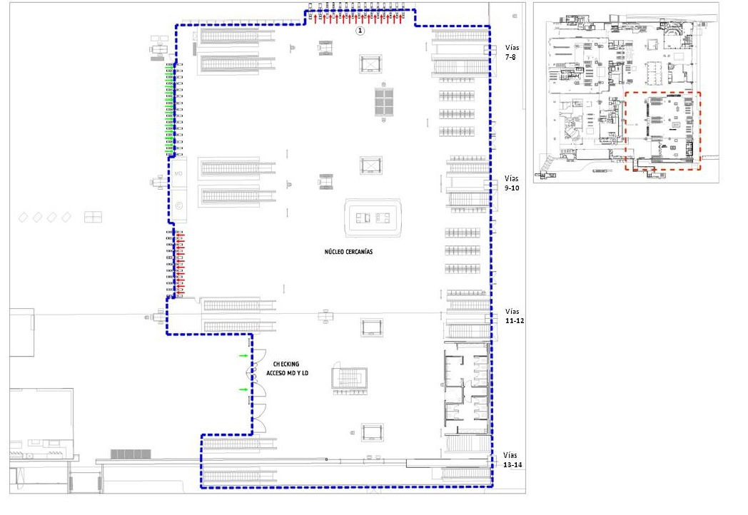
En la actualidad, la estación de Barcelona Sants dispone de ocho vías de estacionamiento para servicios de ancho convencional (Cercanías, Regionales y Larga Distancia). Dos de estas vías dan servicio a los más de 470 trenes que circulan diariamente por el túnel de Plaça de Catalunya, y las seis restantes al túnel de Passeig de Gràcia, por el que discurren más de 370 circulaciones cada día.
Puesto que la explotación actual del servicio está desequilibrada, cualquier incidencia en el tráfico supone mayor afección en las líneas pasantes por Plaça de Catalunya y dificulta la capacidad de normalización del servicio tras un retraso.
Para mejorar la regularidad del servicio y mejorar los índices de puntualidad, se va a acometer un rediseño de la infraestructura que aumentará la capacidad de la estación de Barcelona Sants, mejorando la calidad del servicio de Rodalies.
Gracias a esta actuación, se racionalizará la configuración del esquema de Barcelona Sants, diseñando un sistema denominado 4+4, por el que se dispondrá de dos haces de cuatro vías de estacionamiento que comunicarán con cada uno de los túneles, el de Plaça de Catalunya y el de Passeig de Gràcia. De este modo, se equilibrarán las vías de estacionamiento, para garantizar una mayor capacidad de acuerdo con el actual y futuro esquema de explotación de la red.
Los principales objetivos del proyecto son equilibrar las operaciones de entrada y salida de trenes en la terminal barcelonesa para agilizar los movimientos de estacionamiento y de subida y bajada de viajeros, permitiendo un aumento de la fluidez en el paso por esta estación, lo que redundará en una reducción de los tiempos de viaje.
Con la nueva configuración, las vías 7, 8, 9 y 10 de Barcelona Sants servirán para el estacionamiento de los trenes que circulan por el túnel de Plaça de Catalunya, mientras que las vías 11, 12, 13 y 14 se utilizarán para las circulaciones del túnel de Passeig de Gràcia. Con esta reorganización, cada túnel dispondrá de dos vías por sentido utilizando el mismo andén.

Descripción de los trabajos de infraestructura
En la primera fase de la actuación, que se alargará hasta el 31 de agosto según la planificación vigente, se dará de baja la vía 9 en la cabecera norte y se instalará una topera.
Además, en la cabecera norte se eliminarán, en primer lugar, diecisiete desvíos ferroviarios, se renovará la vía en una longitud de 2.000 metros, se desplazarán 350 metros de vías hasta su posición definitiva, se montarán diecisiete nuevos desvíos, y se adaptarán la catenaria y las instalaciones de seguridad a la futura configuración. Para ello, en esta fase, se utilizarán 4.000 metros de carril, 6.500 traviesas, 350 m3 de hormigón, y 3.000 metros de hilo de contacto, entre otros materiales.
También se llevarán a cabo las adaptaciones necesarias en los equipamientos informáticos del enclavamiento electrónico que gestiona los movimientos de los trenes en el ámbito de la estación.
Reconfiguración del vestíbulo
Por otra parte, desde el pasado 14 de marzo, está funcionando la nueva distribución del vestíbulo de la terminal barcelonesa, que ha permitido crear un único espacio diáfano para el acceso a las vías 7 a 14.
Con esta distribución, funcionan dos núcleos de salida y uno de entrada para los servicios de Cercanías y Media Distancia y se eliminan los actuales controles de acceso diferenciados a las vías 13 y 14, modificándose además la zona de entrada para los trenes de Larga Distancia que circulan por vías de ancho convencional.

Planificación exhaustiva
La gran complejidad de las actuaciones que se van a desarrollar y la importancia estratégica de la estación de Barcelona Sants, ha llevado a Adif a realizar una exhaustiva planificación para la ejecución de los trabajos, con el objetivo de reducir las afectaciones tanto a los viajeros como a la explotación ferroviaria.
Por ello, se trabajará de forma alternativa en la salida de la cabecera norte hacia los túneles de Plaça de Catalunya y de Passeig de Gràcia, ampliando el horario de trabajos nocturnos hasta mediados de agosto, lo que comportará el desvío de los tres últimos trenes del día que habitualmente utilizan el túnel de Passeig de Gràcia por el de Plaça de Catalunya, y que durante este periodo no harán parada en la estación de Passeig de Gràcia.
Así, en una primera fase, se modificarán los recorridos y se desviarán por el túnel de Plaça de Catalunya, efectuando parada en Plaça de Catalunya y Arc de Triomf, los trenes Aeroport (23.28 horas)–Granollers Centre (00.36 horas), Granollers-Centre (23.30 horas) –Vilanova i la Geltrú (00.50 horas) y Montcada-Bifurcació (04.43 horas)–Aeroport (05.30 horas), que circulan habitualmente por las estaciones de Passeig de Gràcia y Barcelona-Estació de França. Los dos últimos trenes variarán además su origen, que actualmente es la estación de Barcelona-França.
En posteriores fases, se realizarán desvíos selectivos por ambos túneles de los que se irá informando en función del avance de las obras.
Mientras duren las obras Adif reforzará las medidas de información a través del personal de atención al cliente, teleindicadores, pantallas, cartelería y megafonía, con la finalidad de facilitar la orientación y movilidad de los viajeros, ya que, durante las mismas, los trenes pueden estacionar por vías diferentes a las habituales.
Toda la información sobre las modificaciones del servicio se podrá consultar en las webs de Rodalies, Renfe y Adif, en el teléfono de información 900 41 00 41, en las Apps para móviles de Rodalies de Catalunya y Adif en tu móvil, así como en las redes sociales (@rodalies, @renfe y @infoadif).